CENTURY 21 B.J. Roth Realty Ltd. Brokerage
Christa Ball

2, 4616 6a Street Ne Calgary, Alberta T2E 4B5

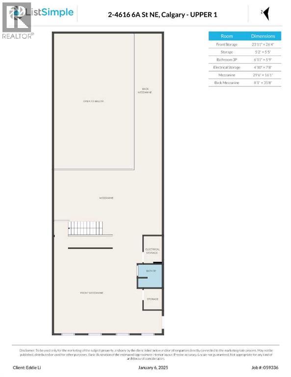
2,990 ft2

$570,000

Aggressively priced below Units # 1 & 5 in the complex. Bay has 2,248 SF on Main & 742 SF for the Mezzanine – a total of 2,990 SF space per the Condo Plan; Gross Lease on M-T-M term, Tenants paying own electricity --- Condo fee (covers gas / water & sewer) @ $ 782.63. Building’s mechanical design: Utility room (furnace & hot water tank) in Bays 2, 3 & 5 respectively; adjoining units (Bay 1 vs. 2; Bay 4 vs. 3) via share use (with cost splitting for such items’ upkeep). Ideal for Owner Operator or Investors. Realtors – please note Private Remarks. [Caution: Commercial loan financing requirements] ** Ceiling Height 19' and power 200 AMP ** (id:57919)

Property Details

MLS® Number A2192196
Property Type Industrial
Community Name Greenview Industrial Park
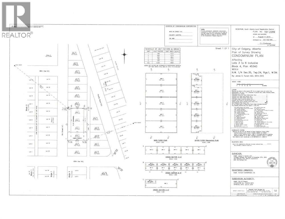
Plan 1512289

Building

Constructed Date 1978
Size Exterior 2990 Sqft
Size Interior 2,990 Ft2
Total Finished Area 2990 Sqft

Land

Acreage No
Size Total Text Unknown
Zoning Description I-g

https://www.realtor.ca/real-estate/27876564/2-4616-6a-street-ne-calgary-greenview-industrial-park

Contact Us

Contact us for more information

Generating Captcha

Eddie Li
Associate Broker

(403) 667-3388
(403) 474-8333

Grand Realty
Unit 24, 2333 - 18 Ave Ne
Calgary, Alberta T2E 8T6

(403) 460-3888
(403) 474-8333

Your Favourites

 

No Favourites Found